Удалённая работа | Комментарии к проекту «План планировки квартиры»
-   -
 

Войти на сайт

Забыли пароль? | Регистрация

- Проекты     Фрилансеры     Блоги     Статьи     Сервисы     Инфо-центр     Поиск -

Обратите внимание

... на каталог фрилансеров

 
 


i118088 Оффлайн Александрович Андрей [i118088]


План планировки квартиры

Бюджет проекта не указан
Что есть:
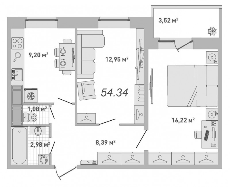
План с размерами квартиры
Один из вариантов перепланировки в .rvt

Что надо:
2-3 варианта планировки/перепланировки с расстановкой мебели сугубо как "картинка для привлечения внимания" чтобы разместить в объявлении. Визуально примерно как в приложенном файле.
Точные размеры/пропорции не нужны.
В предложениях, пожалуйста, указывайте ориентировочные сроки/цену за работу. Жду Ваших предложений!
 
 
Опубликован 02.01.2018 в 23:15 по мск
Проект ориентирован на фрилансеров со специализацией: Дизайн интерьера
Прошло времени с момента публикации: более 8 лет
прикреплённый файл: jpg (jpg, 65,96 Кб)
 
кандидаты Просмотреть кандидатов на исполнение проекта
Исполнитель проекта: не определён
 
 
Комментарии к проекту
mariyahiggins Оффлайн свободен для работы Хиггинс Мария [mariyahiggins]

22.01.2018 в 18:35 по мск

Добрый день!! я архитектор! сделаю вам планировки в таком же виде как на картинке

Стоимость выполнения данного проекта: 500 руб.
 
 
JeySi Оффлайн свободен для работы тонких Любовь [JeySi]

19.02.2018 в 10:31 по мск

Здравствуйте!
Выполню работу с точностью как на картинке.


Прикреплённый файл: jpg (jpg, 316,23 Кб)


Стоимость выполнения данного проекта: 500 руб.
 
 

 
-   -
© 2006-2026 Free-lancers.net
Фрилансеры. Удалённая работа.
В ожидании чуда - 26.06.2026 в 14:04
admin@free-lancers.net
     

Rambler's Top100
О проекте | Обратная связь