Удалённая работа | Работа фрилансера Погорова Светлана [Svetlana-si] | Строительство 9-ти этажного общежития. Свайное поле.
-   -
 

Войти на сайт

Забыли пароль? | Регистрация

- Проекты     Фрилансеры     Блоги     Статьи     Сервисы     Инфо-центр     Поиск -

Фрилансер

Погорова Светлана Погорова Светлана
Промышленный дизайн

Логин: Svetlana-si
Активность: 15.11.2014 в 10:52 по мск
Сейчас на сайте: Оффлайн нет
Написать личное сообщение Написать личное сообщение
Добавить в команду Добавить в команду
Подать жалобу Подать жалобу


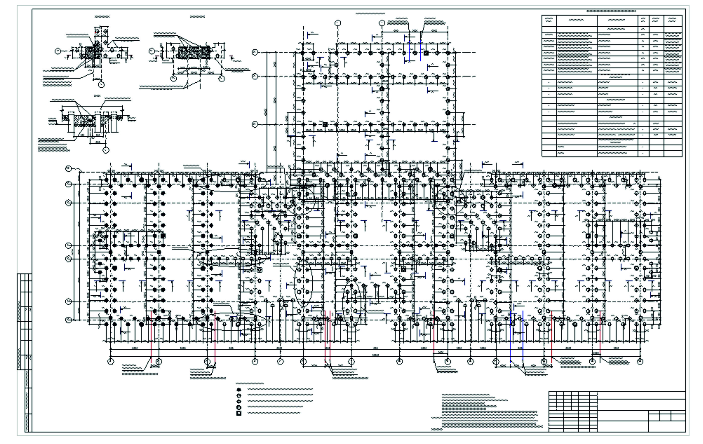
Строительство 9-ти этажного общежития. Свайное поле. Категория: Промышленный дизайн

Строительство 9-ти этажного общежития. Свайное поле.

 
Описание:
Сваи железобетонные по серии 1.011.1-10 в.1, 2. Всего свай 631 шт.

 
 
Предыдущая работа: Административное 2-х этажное здание Следующая работа: Расчёт стального каркаса склад-холодильника

Переход между работами данного фрилансера возможен также с помощью стрелок влево и вправо при зажатой клавише Ctrl.
 
-   -
© 2006-2026 Free-lancers.net
Фрилансеры. Удалённая работа.
В ожидании чуда - 26.06.2026 в 14:04
admin@free-lancers.net
     

Rambler's Top100
О проекте | Обратная связь